Huis
€ 229.000

2880 Bornem
    • delen

Omschrijving Ref.: 7584642

Te renoveren rijwoning met veel potentieel


Deze woning is uitstekend gelegen in het centrum van Bornem, op wandelafstand van winkels, scholen, openbaar vervoer en andere voorzieningen.

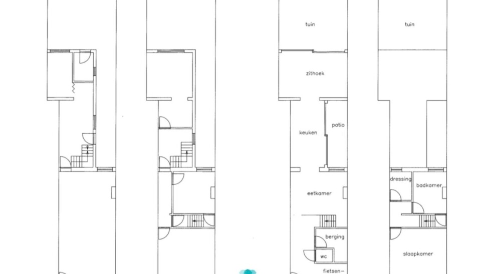
Bij het betreden van de woning komen we in de aangename leefruimte, die meteen een warm en huiselijk gevoel uitstraalt. Aansluitend bevindt zich de praktisch ingerichte keuken met achteraan de badkamer.

Op de eerste verdieping bevinden zich drie volwaardige slaapkamers en een ruime nachthal. Via een vaste trap is er toegang tot de zolderverdieping, die tal van mogelijkheden biedt als extra bergruimte, hobbyruimte of bijkomende kamer.

Als absolute troef beschikt deze woning over een bijzonder gezellige stadstuin waar het heerlijk vertoeven is in alle rust, midden in het centrum.

Bent u op zoek naar een centraal gelegen woning met potentieel? Contacteer ons voor een bezoek en ontdek zelf de mogelijkheden.



Uw contact

Marie-Lynn Van Kerckhoven 03 866 30 30
contact

Details van het pand

Financieel

Prijs
€ 229.000,00
Beschikbaarheid
Vanaf akte

Ligging

Buurt
Centraal
School nabij
Ja
Winkels nabij
Ja

Gebouw

Bewoonbare oppervlakte
123,00 m²
Aantal gevels
2
Bouwjaar
1930
Staat
Deels te renoveren
Netto oppervlakte
122,96 m²
Oppervlakte hoofdgebouw
60 m²

Terrein

Grondoppervlakte
80,00 m²
Oriëntatie terras 1
Zuid

Indeling

Woonkamer
32,00 m²
Keuken
6,00 m², gedeeltelijk geïnstalleerd
Berging
2,00 m²
Slaapkamer 1
15,12 m²
Slaapkamer 2
9,00 m²
Slaapkamer 3
15,00 m²
Badkamer 1
4,00 m²
Toiletten
1
Terras
35,00 m²
Kelder
Ja
Zolder
Ja

Energie

EPC
399 kWh/m²/jaar
EPC unieke code
202512040003749138res1
Type beglazing
Dubbele beglazing
Ramen
Hout
Elektriciteitskeuring
Ja, niet conform
Type verwarming
Gas cv

Stedenbouw

Bestemming
Woongebied
Bouwvergunning
Ja
Verkavelingsvergunning
Nee
Voorkooprecht
Nee
Dagvaarding
Nee - geen rechterlijke herstelmaatregel of bestuurlijke maatregel opgelegd
O-peil
Niet gelegen in een overstromingsgevoelig gebied
G-score
A
P-score
A
Vonnissen
Nee
Kadaster sectie
B
Kadaster nummer
12007B0448/02W000

Meer info over deze eigendom

Bedankt voor je bericht, we contacteren je zo spoedig mogelijk.
Er was een probleem bij het versturen van het formulier, gelieve opnieuw te proberen.
(*) Gelieve de verplichte velden in te vullen.