Gelijkvloerse verd. + tuin
€ 430.000

9140 Temse
    • delen

Omschrijving Ref.: 7293594

Gerenoveerd gelijkvloers appartement in loftstijl met tuin geen BTW


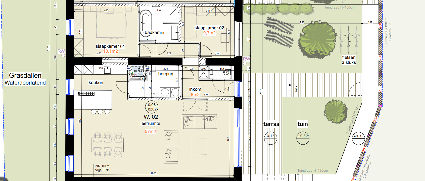
In de prachtig herontwikkelde voormalige brouwerij bevindt zich dit uniek loftstijl nieuwbouwappartement met een hoge afwerkingsgraad en een uitzonderlijk gevoel van ruimte en licht. Dankzij de combinatie van authentieke elementen en moderne luxe ontstaat hier een uniek wooncomfort. Bij het betreden van het appartement komt u binnen in een ruime inkomhal die meteen toegang geeft tot de open en lichtrijke leefruimte. Aan de linkerzijde bevindt zich de stijlvolle woonkamer met volledig uitgeruste keuken, afgewerkt met kwalitatieve materialen en travertin-look vloer die een warme, tijdloze uitstraling biedt. Vanuit de leefruimte heeft u directe toegang tot het gelijkvloerse terras en de tuin, ideaal voor wie houdt van buitenruimte. Verder beschikt het appartement over een zeer praktische berging, apart toilet, twee ruime slaapkamers voorzien van ensuite badkamer met douche, ingericht met kwaliteitsvolle badkamermeubel. Dankzij de grote raampartijen geniet u van veel licht én rechtstreekse toegang tot het ruime terras en de prachtig aangelegde tuin — een absolute troef voor wie houdt van buitenruimte en privacy. Troeven: ✔ Uniek project in voormalige brouwerij ✔ Loftstijl met hoge afwerkingsgraad ✔ Travertin-look tegels en luxueuze afwerking ✔ Mooie, volledig ingerichte keuken en badkamer ✔ Tuin & terras op het gelijkvloers ✔ Twee ruime slaapkamers ✔ Praktische berging ✔ Instapklaar & energiezuinig !EPC in opmaak


Uw contact

Marie-Lynn Van Kerckhoven 03 866 30 30
contact

Details van het pand

Financieel

Prijs
€ 430.000,00
Onder BTW stelsel
Nee

Ligging

Buurt
Centraal

Gebouw

Renovatiejaar
2025
Staat
Nieuw
Bruto oppervlakte
138,00 m²

Terrein

Tuin
Ja
Oriëntatie terras 1
Noordoosten

Indeling

Hal
12,50 m²
Woonkamer
49,10 m²
Berging
Ja
Slaapkamer 1
22,70 m²
Slaapkamer 2
11,80 m²
Badkamer 1
6,50 m²
Toiletten
1
Terras
12,00 m²
Wasplaats
Ja

Comfort

Videofoon
Ja

Energie

EPC
Dubbele beglazing
Ja
Type beglazing
Dubbele beglazing
Elektriciteitskeuring
Ja, conform
Type verwarming
Gas cv

Stedenbouw

Bestemming
Niet meegedeeld
Bouwvergunning
Niet meegedeeld
Verkavelingsvergunning
Niet meegedeeld
Voorkooprecht
Niet meegedeeld
Dagvaarding
Niet meegedeeld
O-peil
Niet gelegen in een overstromingsgevoelig gebied
G-score
A
P-score
A

Meer info over deze eigendom

Bedankt voor je bericht, we contacteren je zo spoedig mogelijk.
Er was een probleem bij het versturen van het formulier, gelieve opnieuw te proberen.
U moet de algemene voorwaarden aanvaarden om dit bericht te kunnen verzenden
(*) Gelieve de verplichte velden in te vullen.